Complejo Habitacional El Colonial
1/18 Fotos
Complejo Habitacional El Colonial
USD $290.000

San Martín, Córdoba

  • 13Dorms
  • 13Baños
  • 426
Fecha de publicación:
31/03/2026
Código:
KP499210
Baños:
13
Dormitorios:
13
Sup. Total:
426 m²
Sup. Construida:
300 m²
Año construcción:
2024
Tipo:
Departamentos
Detalles de la propiedad

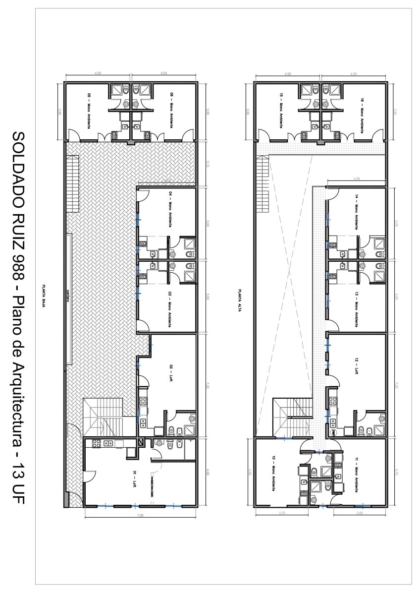
Complejo Habitacional El Colonial – Inversión Segura en Barrio San Martín Estamos desarrollando un proyecto pensado especialmente para inversores rentistas que buscan un retorno seguro y constante. El Complejo Habitacional El Colonial cuenta con 13 unidades monoambientes de entre 20 y 30 metros cuadrados, con la opción de ampliar a 5 unidades adicionales, distribuidas estratégicamente: 6 en planta baja y 7 en el primer piso. Estas unidades están diseñadas para alquileres permanentes, lo que garantiza un flujo de ingresos constante y un excelente retorno de inversión. Ubicado en el Barrio San Martín, a pocos metros del futuro Centro Comercial y a solo 10 minutos del centro de Córdoba, este proyecto se encuentra en una zona de creciente demanda y revalorización, lo que lo convierte en una oportunidad única para aquellos que buscan su primera inversión o ampliar su cartera de inmuebles. Ventajas Clave: * 13 unidades listas para generar rentas mensuales permanentes. * Fecha estimada de entrega: Marzo del 2027. * Proyecto ideal para quienes buscan ingresos pasivos constantes. * Ubicación estratégica, cerca de futuros desarrollos comerciales y a minutos del corazón de la ciudad. * Posibilidad de ampliación del proyecto para maximizar tu inversión. Con más de 20 años de trayectoria en el sector inmobiliario, nuestra empresa se encargará de la administración completa del complejo, brindando un servicio integral y personalizado. Además, cada unidad funcional cuenta con su carpeta individual completa, lista para cualquier trámite o necesidad futura. El Complejo Habitacional El Colonial no solo te asegura un ingreso mensual sostenido, sino que también te permite formar parte de un proyecto en una zona en pleno desarrollo, donde la demanda de alquileres está en constante crecimiento. No pierdas esta oportunidad de inversión. Contáctanos para más detalles y asegura tu lugar en este increíble proyecto. 3513099490

  • Código

    KP499210

  • Fecha de publicación

    31/03/2026

  • Tipo

    Departamentos

  • Estado

    Activa

  • Barrio

    San Martín

  • Localidad

    Córdoba

  • Provincia

    Córdoba

  • País

    Argentina

  • Ambientes

    13

  • Dormitorios

    13

  • Baños

    13

  • Pisos en el edificio

    1

  • Metros totales

    426

  • Metros cubiertos

    300

  • Año construcción

    2024

  • Precio venta

    USD 290000

Amenities y Características
  • Wheelchair ramp
  • Con conexión para lavadora
  • Con área verde
  • Has tap water
  • Has natural gas
  • Cocina
  • Patio
  • Parrilla
  • Living comedor
  • Cantidad de plantas
  • Acceso para personas con movilidad reducida
Video
Ubicación
  • Dirección
    Soldado Ruiz 988
  • Ciudad
    Córdoba
  • Región
    Córdoba
  • Barrio
    San Martín
  • País
    Argentina